Aplicaciones de Diseño para Transformar Ideas en Realidad

Elegir una app para diseñar planos arquitectónicos puede ser un acierto. Estas herramientas no sólo permiten visualizar la estructura de una casa, sino que son útiles para llevar a cabo diversos proyectos, dependiendo de la funcionalidad de la app seleccionada.

🛠️ Herramienta HUD

Accede a HUDs con información rápida y clara.

📊 Vista Intuitiva

Mantén los datos esenciales siempre visibles.

🌐 Dónde Ver

Disponible en Recorrer.com.br.

✨ Práctico y Útil

Ideal para mejorar tu rendimiento diario.

Saber Más

Ya sea que trabajes como arquitecto, diseñador o simplemente disfrutes diseñar como pasatiempo, estas apps te ayudarán a convertir tus ideas en proyectos tangibles.

Entre todas, destaca por su simplicidad y recursos: Floor Plan Creator.

Floor Plan Creator: La Aplicación Destacada para Creación de Planos

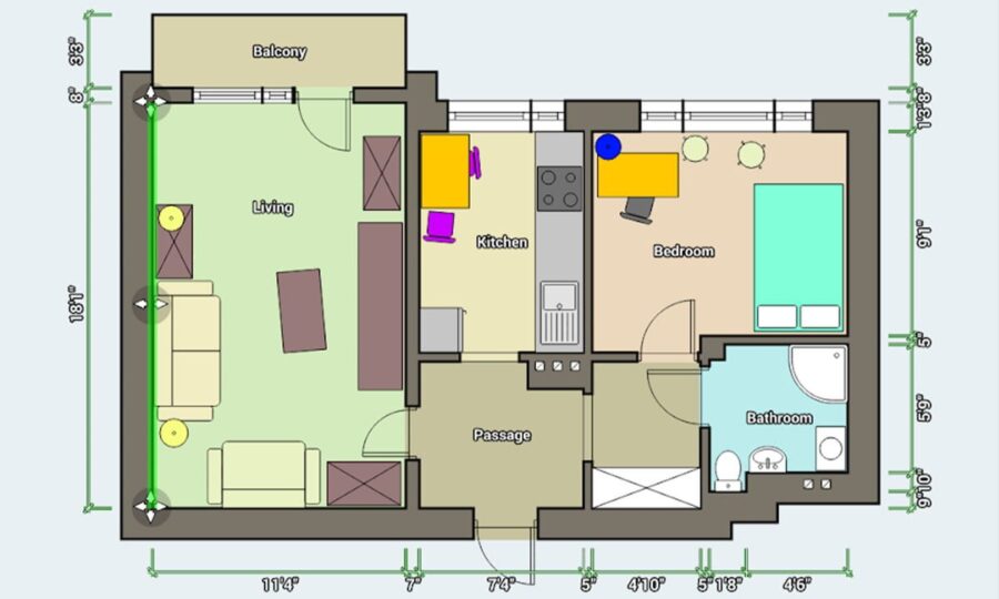
Para quienes buscan una app confiable en diseño de planos, Floor Plan Creator es una de las herramientas más completas disponibles. Se puede usar tanto en Android como en escritorio, y cuenta con miles de usuarios satisfechos, con una calificación de 4.1 estrellas en la Play Store.

Es perfecta para profesionales del diseño y para aquellos que desean experimentar con la creación de interiores o arquitectura.

Características de la App

Floor Plan Creator posee versiones gratuita y premium, ambas brindando herramientas valiosas para diseñar planos detallados.

Conviene Resaltar: Diseñar tu casa es la base; obtener el capital, la clave. Descubre cómo las entidades BBVA o Santander facilitan el Crédito Hipotecario con tasas competitivas. También explora los planes de Préstamo para Construcción para asegurar que el proyecto de tu plano se haga realidad.

Versión Gratuita:

Con esta opción podrás:

  • Crear planos y verlos en 3D.
  • Utilizar la app en el móvil o sincronizarla con el PC.
  • Añadir puertas, ventanas, muebles y componentes eléctricos.
  • Calcular automáticamente áreas y dimensiones.
  • Diseñar múltiples pisos (sólo con paredes rectas).
  • Incluir marcas de agua y compartir tus diseños en baja resolución.

Además, es compatible con medidores láser Bluetooth como Bosch, Leica y Stabila.

Versión Premium:

Suscribiéndote, accederás a características adicionales como:

  • Descarga de planos en alta resolución.
  • Copias de seguridad sin límite.
  • Compartir proyectos entre dispositivos sin restricciones de tiempo.
  • Exportación en formatos como PDF, SVG y DXF.

Razones para Elegir Floor Plan Creator

Es más que una app de diseño: te permite:

  • Visualizar tu futura vivienda en modo 3D.
  • Diseñar tanto interiores como exteriores.
  • Añadir toques decorativos y funcionales.
  • Imprimir tus diseños para convertirlos en proyectos reales.

Es intuitiva, gratuita y accesible desde Android y Windows.

¿Existen Inconvenientes?

Como toda herramienta, tiene sus limitaciones:

  • No es compatible con versiones muy antiguas de Android.
  • La función de compartir está limitada en la versión gratuita.
  • No permite copias de seguridad sin suscripción.

Sin embargo, para quienes están iniciando o desean explorar el mundo del diseño arquitectónico, la versión gratuita es bastante completa. Los profesionales tal vez consideren invertir en la versión premium.

¿Cómo Conseguirla?

Es sencillo: ve a la Play Store, busca “Floor Plan Creator”, descarga la app y decide si usar la versión gratuita o adquirir la completa. En minutos estarás diseñando tu primer plano.

Aunque existen otras opciones, pocas ofrecen la facilidad, precisión y versatilidad de Floor Plan Creator. ¡Prueba y da vida a tus ideas!

DESCARGAR FLOOR PLAN CREATORSerás redirigido a otra página.